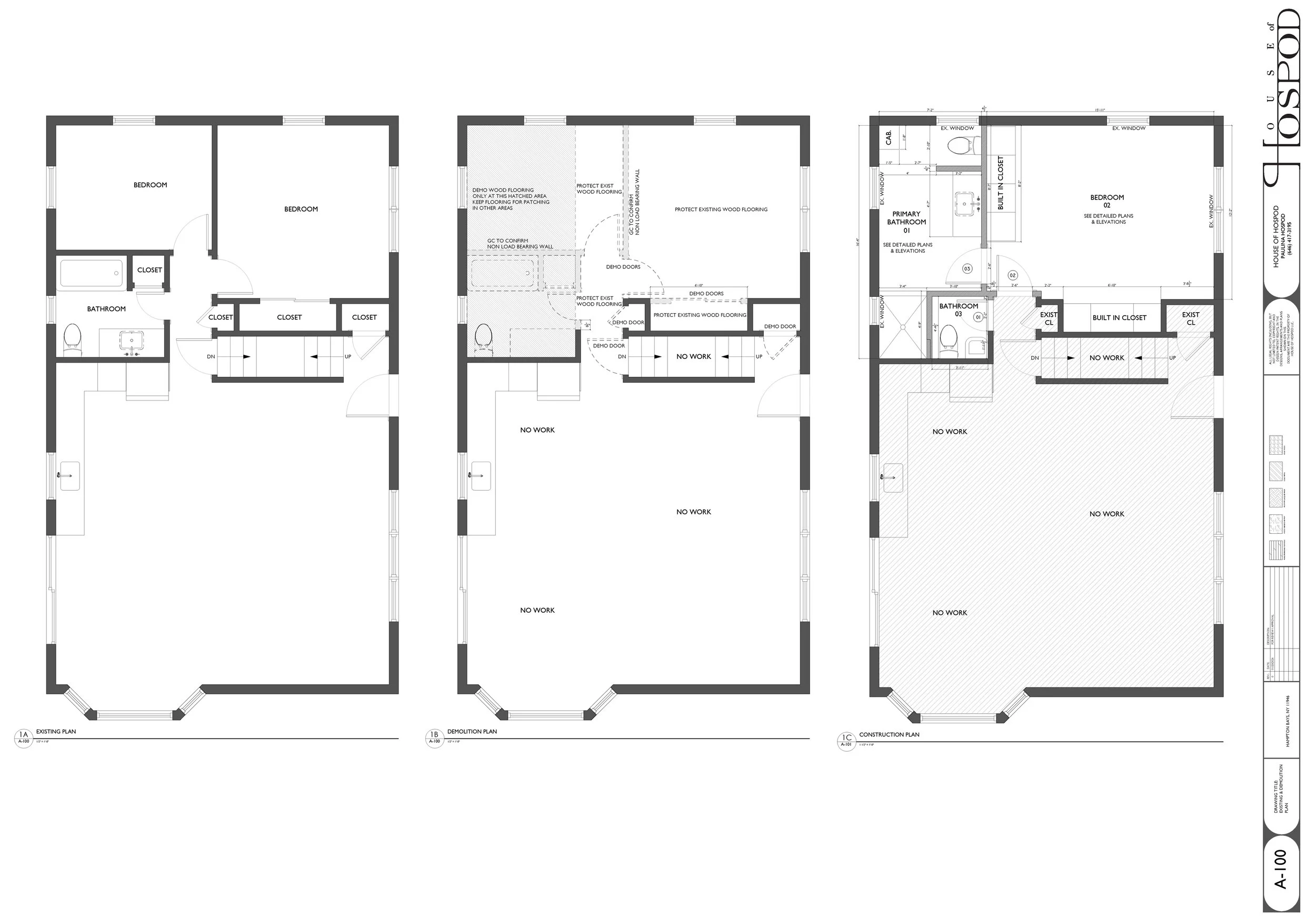
Located in Hampton Bays, this project focuses on the thoughtful redesign of a primary suite within an existing residence. The scope centers on reimagining spatial flow—introducing a new primary bathroom, relocating the powder room, and developing a cohesive layout that enhances both function and comfort.
As an interior design–led project, House of Hospod is responsible for full plan development, detailed drawing sets prepared for Hampton Bays permitting, and all FF&E selections. The design approach emphasizes clarity, materiality, and a calm, layered aesthetic.
The studio remains closely involved throughout construction, providing ongoing collaboration and advisory to ensure the design is executed with precision and intent.
Coming 2026.
Here, creativity meets opportunity.

